In dieser Rubrik sind keine Artikel vorhanden!
Öffentliche Bekanntmachungen | 27.11.2025
Gemeinde Kirchheim am Neckar Gemarkung Kirchheim Umlegung „Bachrain II, Hinter den Lüssen 3“ Bekanntmachung über die Aufstellung des Umlegungsplanes nach § 69 BauGB und der Möglichkeit seiner Einsichtnahme I. Beschluss über die Aufstellung des Umlegungsplans Der Umlegungsausschuss hat in seiner Sitzung …
Satzungen | 21.11.2025
Inkrafttreten der Satzung über die „Verpflichtung der Straßenanlieger zum Reinigen, Schneeräumen und Bestreuen der Gehwege (Streupflichtsatzung)“ Der Gemeinderat der Gemeinde Kirchheim am Neckar hat am 20.11.2025 in öffentlicher Sitzung die Satzung über die Verpflichtung der Straßenanlieger zum Reinigen, …
Sonstiges | 18.11.2025
Bekanntmachung der Tierseuchenkasse (TSK) Baden-Württemberg - Anstalt des öffentlichen Rechts - Hohenzollernstr. 10, 70178 Stuttgart Meldestichtag zur Veranlagung zum Tierseuchenkassenbeitrag 2026 ist der 01.01.2026. Die Meldebögen werden Mitte Dezember 2025 versandt (abweichender Meldebogenversand für …
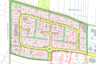
Öffentliche Bekanntmachungen | 05.11.2025
Inkrafttreten des Bebauungsplanes „Bachrain II – Hinter den Lüssen 3“ Der Gemeinderat der Gemeinde Kirchheim am Neckar hat am 24.07.2025 in öffentlicher Sitzung den Bebauungsplan „Bachrain II – Hinter den Lüssen 3“ gem. § 10 Abs. 1 Baugesetzbuch (BauGB) und die zusammen mit dem Bebauungsplan aufgestellten …
Inkrafttreten des Bebauungsplanes „Christof-, Walheimer- und Wilhelmstraße – 1. Änderung“ Der Gemeinderat der Gemeinde Kirchheim am Neckar hat am 25.09.2025 in öffentlicher Sitzung den Bebauungsplan „Christof-, Walheimer- und Wilhelmstraße – 1. Änderung“ gem. § 10 Abs. 1 Baugesetzbuch (BauGB) und die …
Inkrafttreten des Bebauungsplanes „Bachrain II“ - Abschnitt westlich des Talhofes – 1. Änderung und Erweiterung“ Der Gemeinderat der Gemeinde Kirchheim am Neckar hat am 16.12.2010 in öffentlicher Sitzung den Bebauungsplan „Bachrain II“ - Abschnitt westlich des Talhofes – 1. Änderung und Erweiterung“ …
Öffentliche Bekanntmachungen | 12.08.2025
Der Gemeinderat der Gemeinde Kirchheim am Neckar hat in seiner öffentlichen Sitzung am 27.01.2025 dem Einreichen des Bauantrages zugestimmt. Seit 02.07.2025 liegt die Baugenehmigung vor. Es wird ein zentraler Busbahnhof am Bahnhofsgebäude entstehen. Ein Teil dieser Maßnahme beinhaltet die Neugestaltung …
Öffentliche Bekanntmachungen | 08.08.2025
Die Öffentliche Bekanntmachung sowie die dazugehörigen Anlagen können Sie den beigefügten Dokumenten entnehmen. …
Öffentliche Bekanntmachungen | 07.01.2025
I. Allgemeine Informationen Sie erhalten Ihren Grundsteuerbescheid für das Jahr 2025. Dieser basiert erstmals auf dem neuen Landesgrundsteuergesetz (LGrStG), mit dem die Erhebung der Grundsteuer neu geregelt wurde. Die Neuregelung wurde erforderlich, nachdem das Bundesverfassungsgericht festgestellt …
Unterrubriken: